45 Columbia Avenue , Thornwood, NY 10594

$725,000
  • 45 Columbia Avenue , Thornwood, NY 10594 Main Photo

15 Total Photos [Click to View All]

New to the Market Active
BEDS0 BATHS MLS#980176
STATUSActive PROPERTY TYPECommercial -

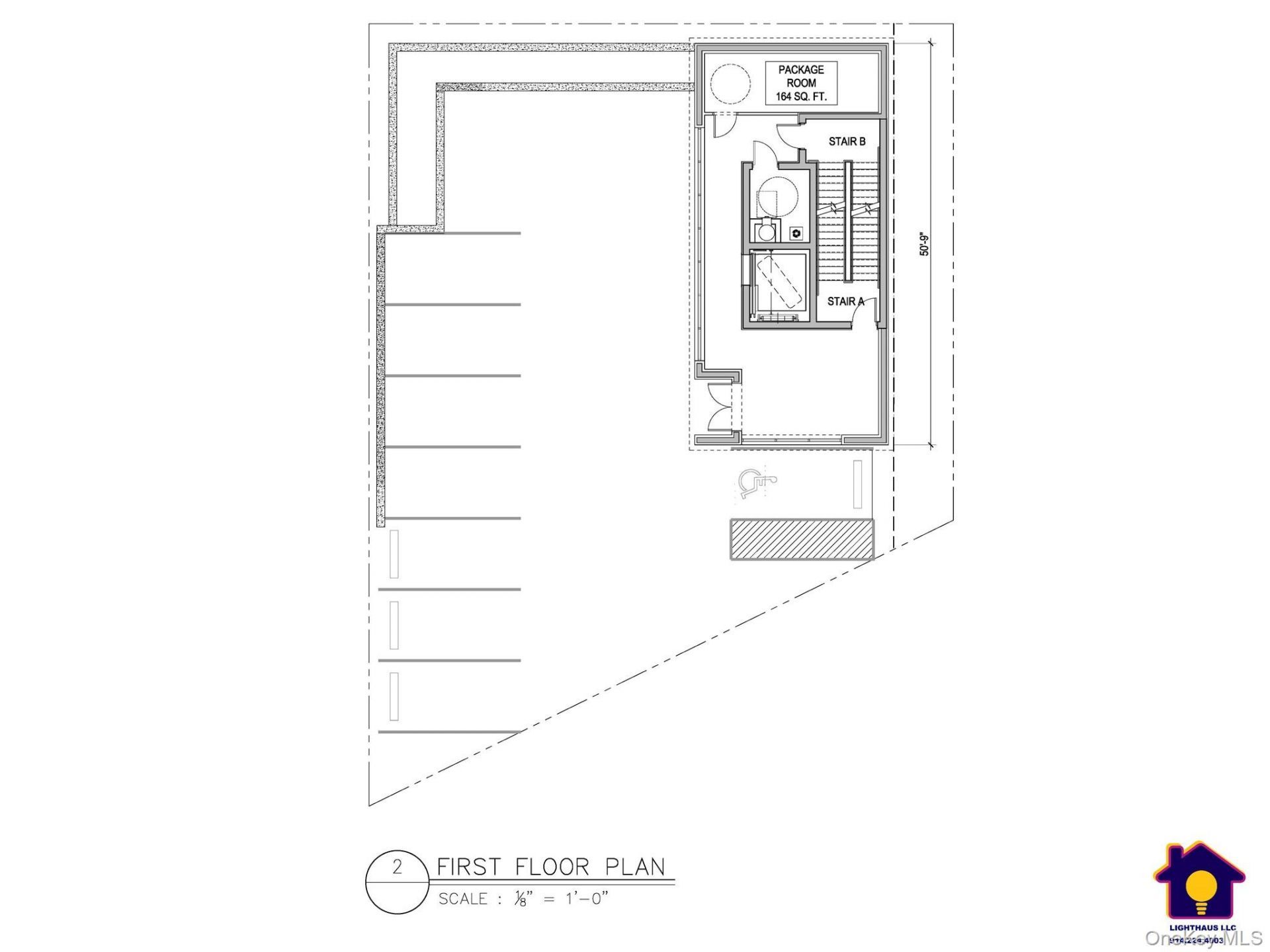
Property Description

Discover your retail or office location at our transit, oriented, multi family development, opportunity! Nestled in a prime location, this exceptional property offers the epitome of convenience with its proximity to train stations, restaurants, and shopping destinations. Step into the future of urban business with this mostly empty open palate ready for your finishing touches. This building is strategically situated for easy commuting and vibrant community experiences. The possibility of street level parking next to the building provides unmatched accessibility, setting the stage for a new building that rises above a dynamic neighborhood, retail district. This unique arrangement opens up a world of possibilities, presenting a fusion of retail, or office spaces to cater to a diverse range of needs. The contemporary design of the new building to be built, harmonizes perfectly with the surrounding environment, offering a seamless blend of modern aesthetics and urban charm. With access points on two sides, the property insures the upmost privacy and independence for separate tenants enhancing the overall tenant experience. On-site parking adds to the allure and there's even additional off street parking available making convenience a top priority. This transit oriented gem is strategically position to provide easy access to all of the amenities that modern life demands. Additional Information: HeatingFuel:Oil Above Ground,

45 Columbia Avenue | MLS# 980176

This commercial property located at 45 Columbia Avenue , Thornwood, NY 10594 is currently listed for sale with an asking price of $725,000. Search Thornwood real estate on www.kenandalice.com today.

Property Features

Property Type: Commercial -
Cooling: Ductwork, Wall/Window Unit(s)
Heating: Baseboard, Electric, Forced Air, Oil
Lot Size: 0.11 Acres
Taxes: $13,892
Year Built: 1965

Feature Descriptions

Appliances: Electric Water Heater
Building Area Total: 7601
Exterior: Block, Frame
Lot Features: Sloped
On Market Date: 2026-04-02
Parcel Number: 3489-106-018-00002-009-0000
Parking Features: Off Street, Private
Parking Total: 8
Rental Term: Monthly
Sewer: Public Sewer
Units: 1
Utilities: Electricity Connected, Natural Gas Available, Phone Connected, Sewer Connected, Trash Collection Private, Water Connected
Water: Public

Listed By / Shown By

Listing By

Agency Name: McGrath Premier Real Estate
Agency Phone: 914-666-7792

Shown By

Agent Name: TEAM Ken and Alice
Agent Phone: (516) 315-8403
Agency Title: Howard Hanna | Coach Realtors

IDX logo

Login to My Homefinder

Pixel